APT CUBO 狭小地対応 50坪から始める戸建て賃貸経営

入居実績が証明する、安心の戸建て賃貸経営
名古屋市及びその周辺地域における戸建て賃貸住宅需要は旺盛です。過去の入居実績がそれを証明しています。

- ※2023年4月28日ユニホー本社調べ
- ※名古屋市内及びその周辺エリアでの実績データをもとに算出しています。
「アプトクーボ」は、50坪程度の狭小地にも対応する【戸建て賃貸住宅】です。
発売から15年、330棟※2の実績が確かな証です。
戸建て賃貸住宅「アプトクーボ」は、2008年の発売開始からおかげさまで15年、たいへん多くのオーナー様、入居者様に選んでいただいております。
その実績を何よりの信頼の証として、これからも自信をもってお客様におすすめいたします。
- 木造
- 戸建
- 都市
- 狭小地
OK - ファミリー
- 専用庭
- 長期
入居 - 高家賃
- 高級
仕様 - ハイ
デザイン - 制震
工法
土地活用の可能性を拡げる。
ユニホーが提案する「アプトクーボ」は、50坪程度の狭小地にも対応する『戸建賃貸住宅』です。
借り手の心を動かす設備仕様で、将来的な賃貸需要を見込んだ新しい賃貸経営がここから始まります。
「アプトクーボ」のメリット
供給量が少ない為、
高い入居率が期待出来ます。
狭小地・変形地の土地へも
柔軟に対応が出来ます。
オーナー様のメリット
相続対策に有効です。
様々な事業形態の選択が
出来ます。
生活音を気にせず、
安心した生活が出来ます。
マンション・アパートと
同等程度の家賃で
一戸建てに住めます。
入居者様のメリット
ガーデニングが楽しめます。※入居条件により異なります。
ペットが飼えます。 ※入居条件により異なります。
アプトクーボの高収益の4つの秘密
今まで活用が困難であった狭小地・変形地など様々な土地に対応し、また分譲住宅のクオリティで、高い入居率と長期安定収入が期待出来る戸建て賃貸住宅、それが「アプトクーボ」です。
1「50坪から」はじめる戸建て賃貸住宅がコンセプト
「どんな土地でも有効活用」…このコンセプトのもとに、「アプトクーボ」は誕生しました。
ターゲットとなる敷地面積は「50坪」です。「間口が極端に狭い」「敷地面積が小さい」「奥行きが狭い」…といった理由で、これまでなかなか活用法が見つからなかった狭小地・変形地でも、「アプトクーボ」なら戸建て賃貸経営を始めることが可能です。
2的確なマーケティングで、安定収入の実現を。
「令和3年度 土地問題に関する 国民の意識調査」において、今後望ましい住宅形態は、全国平均で約半数の54.5%方が「一戸建て」と回答されました。
名古屋市のような大都市圏でも49.2%と 一戸建てに住むことは多くの人々のあこがれであることが分かります。
3分譲住宅に劣らないクオリティで、常に高い入居率を実現

「アプトクーボ」は、通常の戸建て賃貸住宅よりもワンランク上の外観・仕様設備にこだわって設計されています。
これは、「アプトクーボ」 が「暮らしに上質やこだわりを求める夫婦・家族」をターゲットとしているからです。
ユニホーの分譲住宅のノウハウを活かし、賃貸住宅でありながらも分譲住宅にも劣らない上質な外観・仕様設備を備えることで、「高家賃・長期入居」の入居者を獲得することを「アプトクーボ」は目的としています。
4相続対策

複数棟で建設すれば、相続対策としても有効です。
また、アパート・マンションと異なり、相続時に分筆での対応が比較的容易に出来るのもアプトクーボの特徴です。
デザインとコストを追求した最適なプラン
⻑年の経験と、最新のトレンドを採⽤することで、⼊居者様のニーズに合ったプランをご提案いたします。
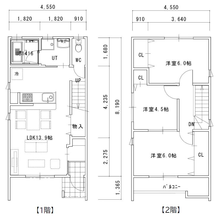
3LDK S4550×8190プラン
- 施行面積
- 80.69m2(24.41坪)
- 1階床面積
- 37.26m2
- 2階床面積
- 37.26m2
- 延床面積
- 74.52m2
- バルコニー面積
- 4.53m2
- ポーチ面積
- 1.64m2


3LDK S7280×5460プラン
- 施行面積
- 81.08m2(24.41坪)
- 1階床面積
- 37.26m2
- 2階床面積
- 37.26m2
- 延床面積
- 74.52m2
- バルコニー面積
- 3.28m2
- ポーチ面積
- 3.28m2


お客様に安心をお届けする保証と工法
地盤20年保証
20年間保証する「地盤保証システム」
地盤調査から解析、対策提案、品質保証書の発行まで、一貫して行います。
地盤の安心
私たちがご提供する地盤保証は、地盤調査データに対して客観的かつ適正な判断を行うための専門知識をもった第三者として、住宅技術協議会が解析を行い、考察と判定の照査を行う事で地盤に起因する不動沈下等の事故が起きた場合の保証する制度です。


地盤保証も付いており、安心の賃貸経営をしていただけます。
地震エネルギーを吸収して揺れを抑える「制震工法」について(オプション)
ユニホーの土地活用ご相談窓口
名古屋市・愛知県の一戸建て住宅の賃貸経営、土地活用に関するご相談、ご質問、資料請求を随時無料で承っております。
2万件以上の賃貸マンション/アパート/一戸建て住宅の管理を手掛ける土地活用のエキスパートユニホーが、お客様に合わせた土地活用方法を提案させて頂きます。
お気軽にお問合せください。
施工エリア:名古屋市・愛知県 及びその周辺
ユニホーのノウハウをご利用ください。
point1提案力
様々な敷地に合わせたご提案!
point2情報収集力
的確なマーケティング
point3技術力
注文住宅のクオリティ!
point4問題解決力
多角的なコンサルティング
不動産・建設の総合企業として多彩な事業を展開し、「住」のすべてに関わっているユニホー。そのノウハウすべてが、お客様の土地活用にご利用いただけます。





