APT LUNA狭小地・変形地対応メゾネットタイプ賃貸アパート

発売から18年、市場のニーズに合わせて変化し続けるメゾネット賃貸アパート
メゾネット賃貸アパート「アプトルーナ」は、2006年の発売開始からおかげさまで18年、常に市場のニーズに受け入れられるように変化し続けることで、数多くのオーナー様、入居者様に選んでいただいております。
- 木造
- メゾネット
- 都市
- ファミリー
- 若年
向け - 専用庭
- 長期
入居 - ハイ
デザイン - 単身
幅広い入居者層がターゲット
ユニホーが提案する「アプトルーナ」は、狭小地・変形地にも対応が可能なメゾネット賃貸アパートです。
2LDK約75m2の間取りは、小さいお子様がいらっしゃるご夫婦や、DINKs(お子様がいらっしゃらないご夫婦) また、お子様が巣立ったご夫婦など幅広い入居者層が見込めることで、安心の賃貸アパート経営をサポートします。
メゾネット賃貸アパート「アプトルーナ」のメリット
オーナー様の
メリット
柔軟に対応し
建設が可能です。
空室リスクを低減させます。
入居者様の
メリット
安心した生活が出来ます。
お庭付です。
※敷地条件により異なります。
※入居条件により異なります。
デザインとコストを追求した最適なプラン
長年の経験と、最新のトレンドを採用することで、入居者様のニーズに合ったプランをご提案いたします。
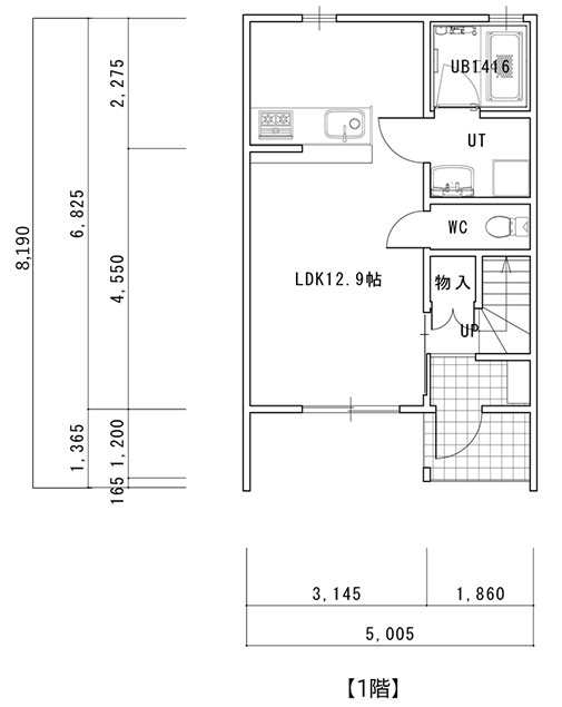
参考プラン S5005×8190
- 2LDK
- 施工面積:75.95m2(22.97坪)
- 1階床面積:34.16m2
- 2階床面積:34.16m2
- 延べ床面積:68.32m2
- バルコニー面積:5.40m2
- ポーチ面積:2.23m2


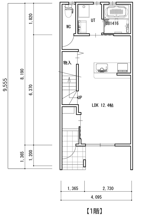
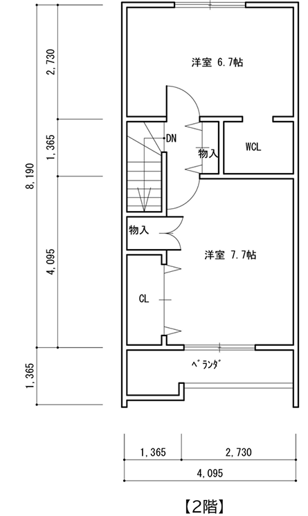
参考プランB S4095×9555
- 2LDK
- 施工面積:75.95m2(22.97坪)
- 1階床面積:34.16m2
- 2階床面積:34.16m2
- 延べ床面積:68.32m2
- バルコニー面積:5.40m2
- ポーチ面積:2.23m2


充実の内装設備プラン
入居者様に高いご支持をいただける内装設備を取り揃えました。建物の魅力を引き立てる充実の内容です。
システムキッチン(キッチンサイズw2100mm)Kitchen

使いやすさを美しく配置したシステムキッチン

表面にエンボス加工を施した耐久性に優れる使い勝手のよいステンレストップ。

3口コンロ・ホーロートップタイプのガスコンロ。無水片面焼きグリル付の充実仕様です。
ゆとりの浴室(UBサイズ1416)Bathroom

快適さとコストバランスに配慮したシステムバス

内側にエッジのないかたちの弓形浴槽は、人を招き入れるようなやさしいフォルム。曲線が美しい、入りたくなるような浴槽です。

メタル仕様の洗い場水栓とシャワー水栓は、高級感を演出。入浴時の満足度を向上させます。
洗面化粧台(W750mm)Powderroom

キレイの追求が美しい空間を生んだ洗面ドレッサー

つなぎ目などの凹凸がなく、飛び散った水滴をサッと拭き取れる「キレイアップカウンター」

上から水がでて、水栓まわりに水がたまらない「キレイアップ水栓」
トイレToilet



つなぎ目をなくし、さらに便座裏の防汚処理で、お掃除がラクラクです。
お客様に安心をお届けする保証と工法
地盤20年保証
20年間保証する「地盤保証システム」
地盤調査から解析、対策提案、品質保証書の発行まで、一貫して行います。
地盤の安心
私たちがご提供する地盤保証は、地盤調査データに対して客観的かつ適正な判断を行うための専門知識をもった第三者として、住宅技術協議会が解析を行い、考察と判定の照査を行う事で地盤に起因する不動沈下等の事故が起きた場合の保証する制度です。


地盤保証も付いており、安心の賃貸経営をしていただけます。
地震エネルギーを吸収して揺れを抑える「制震工法」について(オプション)
ユニホーの土地活用ご相談窓口
名古屋市・愛知県のアパート経営、土地活用に関するご相談、ご質問、資料請求を随時無料で承っております。
2万件以上の賃貸マンション/アパート/一戸建て住宅の管理を手掛ける土地活用のエキスパートユニホーが、お客様に合わせた土地活用方法を提案させて頂きます。
お気軽にお問合せください。
施工エリア:名古屋市・愛知県 及びその周辺